Refine Search

17926 Wheat Stack Court, Parrish, FL 34219

$394,990
  • 17926 Wheat Stack Court, Parrish, FL 34219 Main Photo

10 Total Photos [Click to View All]

Active
BEDS5 BATHS2 full SQUARE FEET1,739 MLS#A4682158
STATUSActive PROPERTY TYPEResidential - Single Family SUBDIVISIONRYE CROSSING

Property Description

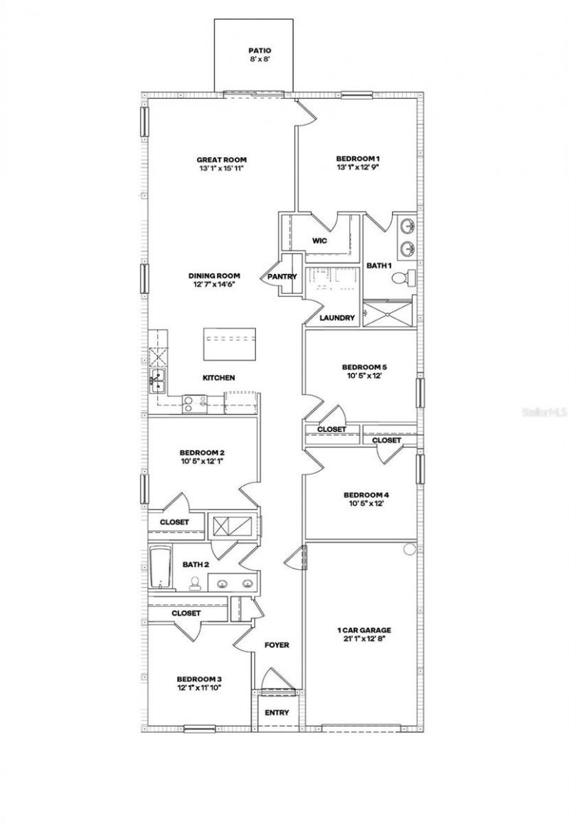
Under Construction. ALL CLOSING COSTS PAID, $5,000 towards upgrades + Special Interest Rates with the use of our preferred lender - Now through 3/31. The Alford is a one-story home that balances style, space, and comfort. Offering 5 bedrooms, 2 bathrooms, and 1,739 square feet, this floor plan provides plenty of room for families of all sizes. Its open-concept layout seamlessly connects the kitchen, dining, and living areas, creating a welcoming space that's ideal for gatherings or everyday living. The kitchen is a standout with shaker-style cabinetry, quartz countertops, and stainless-steel appliances, all overlooking the dining area for easy entertaining. With its thoughtful layout and modern finishes, the Alford makes it easy to create the home that fits your lifestyle. The primary suite is tucked at the back of the home for added privacy, featuring a walk-in closet and a private bathroom with dual vanities and a separate space for the shower and toilet. Four additional bedrooms at the front of the home offers flexibility for family, guests, or even a home office. This community offers resort-style living with amenities for everyone, including a sparkling pool, fitness room, playground, dog park, and both pickleball and tennis courts. Residents can also enjoy friendly competition at the beach volleyball and basketball courts, creating the perfect blend of relaxation and recreation.

17926 Wheat Stack Court | MLS# A4682158

This single family home located at 17926 Wheat Stack Court, Parrish, FL 34219 is currently listed for sale with an asking price of $394,990. This property was built in 2026 and has 5 bedrooms and 2 full baths with 1739 sq. ft. Wheat Stack Court is located in the RYE CROSSING subdivision. Search RYE CROSSING real estate on www.adamscameron.com today.

Property Features

Property Type: Residential - Single Family
Cooling: Central Air
Garage: 1 car attached
Heating: Electric
Lot Size: 0.11 Acres
Roof Type: Shingle
Stories: 1.0
Taxes: $0
Year Built: 2026

Amenities

Smart Home
Thermostat
Hurricane Shutters

Feature Descriptions

Appliances: Dishwasher, Dryer, Microwave, Range, Refrigerator, Washer
Association Amenities: Basketball Court, Clubhouse, Gated, Pickleball Court(s), Playground, Pool, Recreation Facilities, Tennis Court(s)
Builder: D R Horton
Community Features: Clubhouse, Community Mailbox, Fitness Center, Golf Carts OK, Playground, Pool, Tennis Court(s)
Days on Site: 48
Directions: From Bradenton take I-75 N take exit 220 toward FL-64 E for half a mile. Then, use the left 2 lanes to turn left onto FL-64 E (follow signs for Zolfo Springs/Wauchula) for 4 miles. When you approach the traffic circle, take the 2nd exit and stay on FL-64
Exterior: Concrete
Flood Zone Code: X
Flooring: Carpet, Luxury Vinyl
Foundation: Slab
Garage Dimensions: 21X13
HOA Fee: 132/ Monthly
HOA Y/N: Yes
Home Warranty Y/N: No
Listing Terms: Cash, Conventional, FHA, VA Loan
Lot Dimensions: 0.11
Model: Alford
Other Equipment: Irrigation Equipment
Ownership: Fee Simple
Parking: Driveway, Garage Door Opener
Parking Notes: Driveway, Garage Door Opener
Pets Allowed: Yes
Pets Restrictions: Per HOA Guidelines
Pool: Other
Property Attached Y/N: No
Property Sub-Type: Single Family Residence
Security: Gated Community, Smoke Detector(s)
Sewer: Public Sewer
Showing Instructions: Call Listing Agent
Special Sale Provisions: None
Utilities: Electricity Available, Public
Water: Public
Water Access Y/N: No
Water View: Pond
Zoning: PD MU

Room Sizes

Great Room: 13x16
Kitchen: 11x13
Dining Room: 12x14
Primary Bedroom: 13x13
Bedroom 2: 10x12
Bedroom 3: 12x12
Balcony/Porch/Lanai: 8x8
Bedroom 4: 10x12
Bathroom 5: 10x12

Local Schools

High School: Parrish Community High
Middle School: Buffalo Creek Middle
Elementary School: Gene Witt Elementary

Listed By / Shown By

Listed By

Agency Name: D.R. HORTON REALTY OF SARASOTA
Agency Contact: 941-256-7010

Shown By

Agency Title: Adams Cameron & Co. REALTORS
Agency Phone: 386-253-8044

IDX logo

Estimate Your Payment

Estimated Payment

$ 2,217.51 per month $2,102.30 Principal & Interest $0.00 Property Tax (data not provided by mls) $115.21 Homeowner's Insurance

Change Payment Information

%
years/fixed
yearly
yearly (est.)
(Payments are an estimate and may vary by lender)

Rose Pinto and Dawson Walker can help you get pre-approved quickly and easily in order to get the home buying process started.

Login to My Homefinder

Pixel